Shitole Infra understands that the foundation of a successful project lies in meticulous planning, design, and execution. As a Pune-based fabricator and engineering design company, we bring over two decades of experience in delivering top-tier design and detail engineering services for large-scale infrastructure projects, including bridges, airports, and metro systems.

Structural Design Creation

We specialise in developing robust structural designs that prioritise safety, durability, and efficiency.

Detail Engineering

Our detailed engineering services ensure that every element of the design is translated into executable plans. From exact measurements and material specifications to fabrication drawings, we cover every aspect.

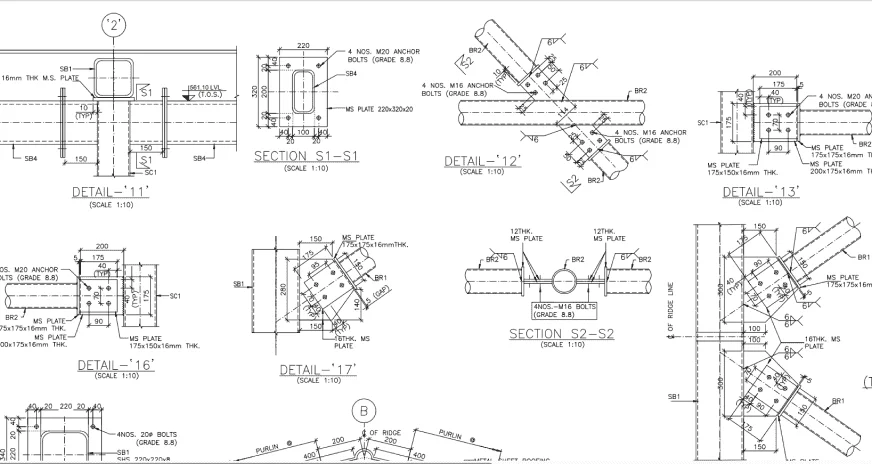
3D Modeling

Utilising cutting-edge 3D modelling technologies, we create highly accurate visual representations of the entire project. This helps streamline construction processes, improve collaboration, and minimise errors during fabrication and erection.

Project-Specific Solutions

No two projects are alike. Whether it’s a bridge or the steel framework of an airport terminal, our team tailors each design solution to the unique requirements of the project, ensuring seamless integration of our work with other engineering disciplines.

Our Process

Shitole Infra provides end-to-end solutions to our clients where we start with conceptualising clients' vision into workable steel structure designs and then designing it while keeping durability, safety and precision in mind. Our modelling and simulation softwares ensure that the project is visualised to integrate client vision and project functionality while keeping all safety measures in place. Our project management process ensures regular audits, quality checks and optimisation for cost effectiveness and safety.

Shitole Infra - Your trusted partner in design and detail engineering Contact Us Today!

Our USP - Unique Selling Points

Service-area
Nearly three decades of experience

Established in 1996, Shitole Infra has been a reputed name in the area of steel fabrication and erection in Maharashtra. With 3 sites, and a strong and skilled workforce, we are now aiming to be one of the leading bridge construction companies in India.

Service-area
20,000 metric tonnes steel fabricated

We have fabricated tonnes of steel, quite literally, for a diverse range of projects. Our projects include airports, ports, metro, bridges, prefabricated structures, industrial requirements and much more.

Service-area
More than 50,000 metric tons of steel erected

We are dependable erection partners for many of the leading engineering firms. Our expertise in erection of complex structures makes us a unique partner.

Service-area
Skilled Workforce across sites in Maharashtra

Shitole Infra has invested in its people and equipment by establishing Pan India sites that have state-of-the-art equipment and a skilled workforce. We have 12T -60T telescopic cranes that are also rented for specific projects.

Choosing Shitole Infra means partnering with a bridge construction company in India that values safety, quality and customer satisfaction. Be it a turn-key project or erection of steel structures to bring your vision to life, if it is bridge construction then Shitole Infra is the perfect choice.
Contact Us today and experience unparalleled excellence and expertise

Get In Touch

Needs Help? Let’s Get in Touch